Innovative Switchgear Solutions

Expert manufacturing, trading, and drafting services for electrical engineering needs.

Our Services

Expert switchgear manufacturing, trading, troubleshooting, and electrical drafting services tailored for your needs.

Switchgear Solutions

Comprehensive manufacturing and trading of DBs, LT panels, MCC panels, and more.

Drafting Services

Professional AutoCAD drafting from sketches, PDFs, and raw data for international clients.

Our Projects

Explore our innovative switchgear and electrical solutions.

a close up of a machine with a piece of metal on it
a close up of a machine with a piece of metal on it
Panel Manufacturing

Custom switchgear panels for various applications.

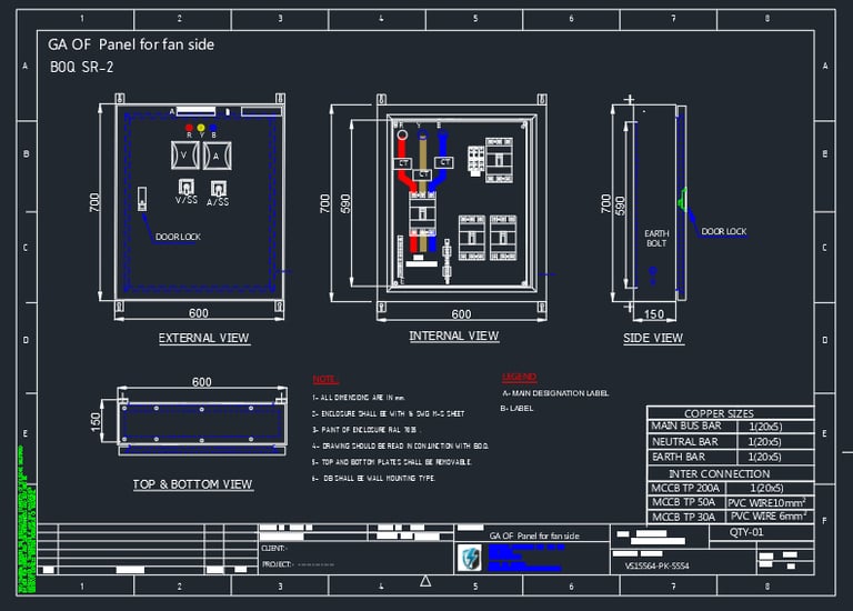
VoltEdge Autocad drawing of Power distribution /Electrical Distribution box
VoltEdge Autocad drawing of Power distribution /Electrical Distribution box
ATS Panel wiring Diagram with module,
ATS Panel wiring Diagram with module,
Electrical Drafting

Professional AutoCAD drafting services for clients.

Electrical Switchgear & Trading

We supply high-quality electrical components, switchgear parts, and accessories to meet project and maintenance needs. Products are carefully sourced for reliability and performance.

11KV MV Panel Fixed Contact for VCB contact to circuit/Switchgear
11KV MV Panel Fixed Contact for VCB contact to circuit/Switchgear
11KV MV Panel Fixed Contact for VCB contact to circuit/Switchgear
11KV MV Panel Fixed Contact for VCB contact to circuit/Switchgear
Fixed Contact for 11KV swithgear
Fixed Contact for 11KV swithgear
VCB Tulip Contact ,11KV cassete type VCB's Tulip Contact
VCB Tulip Contact ,11KV cassete type VCB's Tulip Contact
VCB Tulip Contact ,11KV cassete type VCB's Tulip Contact
VCB Tulip Contact ,11KV cassete type VCB's Tulip Contact